Germostroy.ru
Режим работы:
пн-пт : 07:00-16:30
  +7(903)136-66-75
+7(495)229-41-87
+7(495)483-72-94
germostroy@rambler.ru

Есть мнение Фасады Формула успеха

Формула успеха

Время диктует свои условия, предъявляя новые требования как к эстетическому, так и к техническому решению фасадов зданий. Основные направления, по которым идет развитие строительной отрасли, - это ориентация на применение энергосберегающих, долговечных материалов и технологий, позволяющих быстро и удобно, в короткие сроки и круглый год вести необходимые работы.

К конструкциям, сочетающим эти требования, можно отнести различные фасадные системы из алюминиевых и стальных профилей (светопрозрачных или включающих облицовочный материал). Так, алюминиевые конструкции, изготовляемые из профилей системы "ТАТПРОФ", включают богатый набор потребительских характеристик и обладают оптимальным соотношением цена/качество. Конкурентоспособность конструкций обеспечивается высокой технологичностью изготовления, сборки и монтажа, универсальностью применения, высокими инерционными и теплотехническими характеристиками и, как следствие, высокой эксплуатационной надежностью.

Сегодня мы хотим рассказать о новинках строительной системы ограждающих конструкций "ТАТПРОФ", которые позволят Вам реализовать самые амбициозные архитектурные проекты. Новые системы - это техническое совершенство и современный дизайн.

ХОЛОДНО-ТЕПЛЫЙ ФАСАД

Холодно-теплый фасад системы "ТАТПРОФ" используется в том случае, когда необходимо остеклить здание, имеющее в вертикальных стенах оконные проемы. При этом области, где отсутствуют окна, являются холодными и фасад несет только декоративные функции. В "холодной" области заполнение осуществляется стеклом. Области оконных проемов являются теплыми, и в этих областях фасад выполняет все функции стандартных теплых окон с поворотным, откидным или поворотно-откидным открыванием. Именно из-за этого четкого разделения холодных и теплых областей фасад называется "холодно-теплый".

Этот тип фасада отличается невидимостью элементов створок, установленных в оконных проемах, на фоне плоского фасада здания, что на сегодняшний день - одно из основных требований архитекторов.

СТРУКТУРНОЕ ОСТЕКЛЕНИЕ (ТП-50300 СО)

Фасадная система "ТАТПРОФ" со структурным остеклением отличается от традиционного фасада отсутствием алюминиевых прижимов и крышек с лицевой стороны фасада. Создается иллюзия сплошного остекления.

Отличительные особенности фасадной системы "ТАТПРОФ":

  • специальные стеклопакеты, позволяющие осуществить их скрытое крепление;
  • для герметизации используется высококачественный силиконовый герметик. Наносится на конструкцию при температуре от +50С до +400С, затем затвердевает под воздействием влаги окружающей среды, в результате чего получается прочное и эластичное соединение. Сохраняет свои свойства при температурах от -400С до +1500С.

ПОЛУСТРУКТУРНОЕ ОСТЕКЛЕНИЕ (ТП-50300 ПО)

Фасадная система с полуструктурным остеклением отличается от традиционного фасада также отсутствием крышек и прижимов с лицевой стороны. Стеклопакет обрамляет рама, практически не заметная снаружи, что позволяет добиться целостности фасада. Секции фасада могут быть как глухими, так и открывающимися, могут встраиваться как в проем, так и быть навесные. В витраж легко устанавливаются алюминиевые двери серий ТП-50 и ТПТ-66300 системы "ТАТПРОФ". Монтаж конструкций производится в следующем порядке: сначала устанавливаются стойки с ригелями, затем устанавливаются предварительно собранные в заводских условиях створки.

Разработанная схема фасада с полуструктурным остеклением позволит сделать шаг вперед в реализации архитектурных решений. А если есть ограничения бюджета строительства (т.к. на сегодняшний день основная проблема в реализации проектов со структурным остеклением - это высокая стоимость стеклопакета), то полуструктурное остекление - лучшее решение.

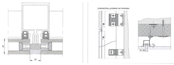
ВЕНТИЛИРУЕМЫЕ ФАСАДЫ

Решением актуальной проблемы энергосбережения является система вентилируемых фасадов "ТАТПРОФ", предназначенная для повышения теплозащитных свойств наружных ограждающих конструкций жилых и общественных зданий, выполненных из бетона, кирпича или других стеновых материалов с целью повышения теплоизоляционных показателей. Конструкция системы представляет собой вертикальные направляющие (стойки), устанавливаемые на существующей стене здания и служащие для крепления облицовки. Применяются в новом строительстве, при реконструкции и капитальном ремонте наружных стен зданий и сооружений.

Облицовкой может быть широкая гамма строительных материалов:

  • фиброцементные плиты;
  • натуральный камень и керамогранит;
  • композитные и многослойные материалы типа алю-кобонд;
  • алюминиевые панели.

В системе имеется воздушный зазор между облицовкой и негорючим теплоизоляционным слоем (утеплителем). Система может отличаться:

  • формой, размерами и креплением элементов облицовки;
  • формой и размерами направляющих;
  • типом крепежных изделий;
  • наличием или отсутствием утеплителя, а также маркой и толщиной минераловатных плит. Проектное значение воздушного зазора составляет 60 мм, допускаемое значение - 40-100 мм.

Основные достоинства вентилируемых фасадов:

  • появляются широкие возможности для использования современных фасадных отделочных материалов, а значит предоставляется широкое поле для архитектурного творчества;
  • вентиляция внутренних слоев: удаление атмосферной влаги и влаги, образующейся за счет диффузии водяных паров изнутри;
  • защита стены и теплоизоляции от атмосферных воздействий;
  • высокая тепло- и звукоизоляция;
  • экологичность, пожаробезопасность;
  • влагонепроницаемость, морозоустойчивость;
  • легкость и скорость монтажа в любое время года;
  • длительный безремонтный срок.

Система вентилируемых фасадов "ТАТПРОФ" имеет сертификат соответствия Госстроя России и техническое освидетельствование на заполнение облицовочным материалом - керамогранитом.

ОКНА ДВЕРИ - 2005, приложение к журналу ЕВРОСТРОЙ, стр.42-43


 
Москва, ул. Софьи Ковалевской 14а
тел./факс:
+7 (495) 229-41-87
germostroy@rambler.ru

Клеевой отдел: +7 (495) 543-26-65
 
Герметики ·  Мастики ·  Клеи ·  Гидрофобизаторы ·  Очистители ·  ЛКМ ·  Наливные покрытия ·  Утеплители ·  Гидроизоляция ·  Огнебиозащита ·  Пены полиуретановые ·  Инструменты ·  Антикоррозийные покрытия ·  Сухие смеси ·  Составы для бетона

Панельное домостроение ·  Монолитное и кирпичное домостроение ·  Деревянное домостроение ·  Производство стеклопакетов, монтаж окон

Наш информационный партнер - стоительный портал www.stroyka.ru Web-mastering © Почерк.Ru, 2006-2026